
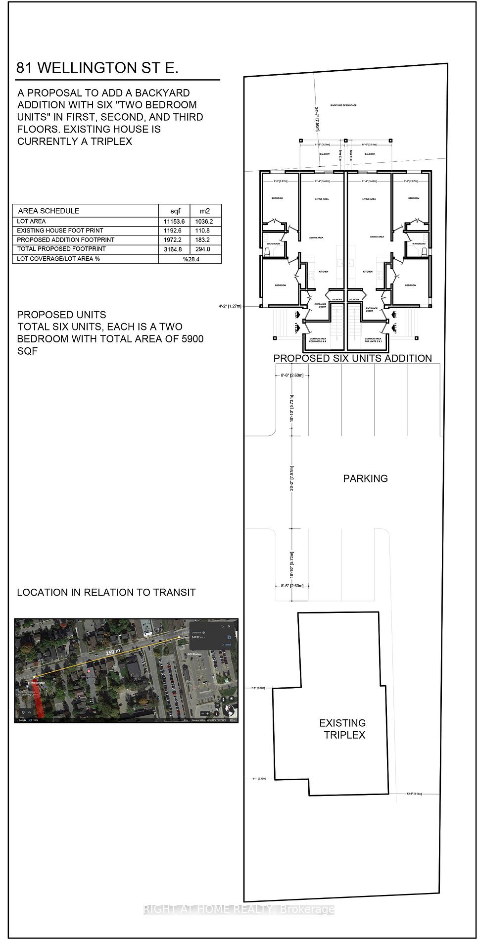
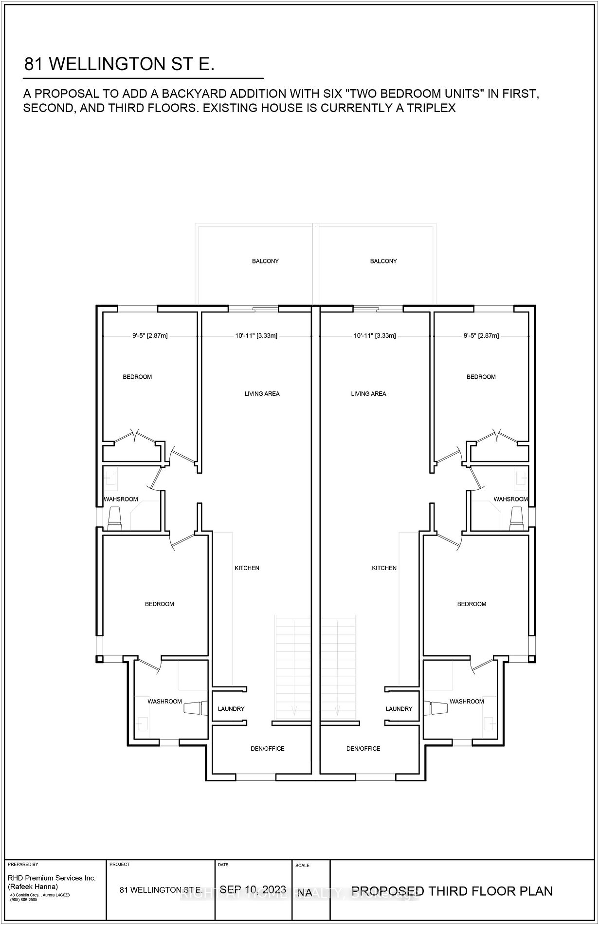
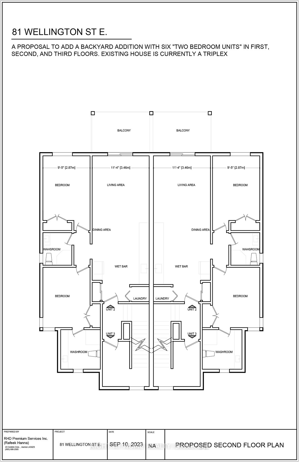
Attention Investors, Excellent investment opportunity in downtown Aurora. A spacious deep lot within walking distance from Aurora Go station. Existing recently renovated legal Triplex with a monthly rental income and the opportunity for future development adding 6 or more units at the back for even greater income. Three gas meters, Three furnaces, and four hydro meters. Conceptual drawings for adding 6 more units at the back, or delisting the property and redeveloping the entire lot.
| Price: | $1,500,000 |
| Address: | 81 E Wellington St |
| City: | Aurora |
| County: | York |
| State: | Ontario |
| Zip Code: | L4G 1H7 |
| MLS: | N7227312 |
| Bedrooms: | 4 |
| Bathrooms: | 3 |
Please sign up for a Listing Manager account below to inquire about this listing